厉害了!Costco 为应对加州住房危机制定大胆新计划。
对于洛杉矶居民而言,大家可能很快就能在购买大量家居用品的同时——买到一套经济实惠的公寓!这是什么情况,一起来看看。

以下图源Thrive Living,版权归原作者所有
01
为缓解住房危机
Costco建造公寓大楼

Costco 一直以来以其仓库外观和难以击败的优惠而深受大家喜爱,现如今它们推出多年来最大的新产品:经济适用房!
据报道,Costco在6月份宣布与开发商Thrive Living合作,将在南洛杉矶占地5亩的空置医院用地上,开发一个混合用途综合体,旨在缓解经济适用房危机。


该项目将建在鲍德温村,将由开发商 Thrive Living 和建筑师 AO 建造,具有多层楼、开放式庭院空间和其他便利设施。
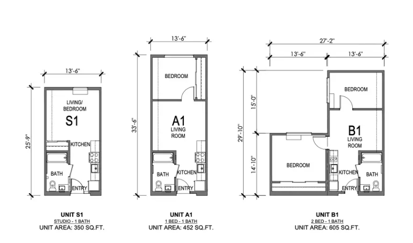
重建后的场地不仅包括Costco商店和 800 套独立公寓,还将包括健身区、多用途社区空间、多个庭院和景观小径、屋顶游泳池和其他设施,如花园。还有必要的大型停车场。

Thrive Living代表表示,除能在商店购物以外,这项公寓还包括五个庭院和一条景观步道,屋顶游泳池、完整的篮球场及各种攀爬和娱乐设施。另外还有室内、室外健身区,提供社区居民聚会、辅导和教学的教室,及可举办社区电影之夜的户外区,民众还可在社区花园种植可食植物等。
还将有一家「最先进的好市多,替居民提供新鲜农产品和健康食品」,包括一个眼镜服务柜台、药房与送货服务等。
800 个住宅单元,其中 184 个专门为低收入租户预留。

据房地产分析师 CoStar 称,这种全新的混合用途模式不仅对洛杉矶来说是一种新奇事物,而且“可能对 Costco 产生全国零售影响”。
若这项住商混合开发计画顺利完工,民众将无需走很远,便能买到Costco烤鸡了!
来源:网络
图片翻摄自网路,版权归原作者所有。如有侵权请联系我们,我们将及时处理。